|


ISG管道離心泵產品概述:
ISG型立式單級單吸管道離心泵又稱(管道泵、離心泵、管道離心泵、熱水泵
)等,IS型離心泵和SG型管道泵之性能參數,在一般立式管道泵的基礎上進行巧妙組合設計而成,同時根據使用溫度、介質等不同在ISG型管道離心泵的基礎上派生出適用立式熱水管道離心泵、不銹鋼管道泵、防爆離心泵。該系列產品具有噪音低、性能可靠等。
ISG立式離心泵產品特點
1、管道離心泵為立式結構,進出口口徑相同,且位于同一中心線上,可象閥門一樣安裝于管路之中,外形緊湊美觀,占地面積小,建筑投入低,如加上防護罩則可置于戶外使用。
2、ISG離心泵葉輪直接安裝在電機的長軸上,軸向尺寸短,結構緊湊,泵與電機軸承配置合理,能有效地平衡泵運轉產生的徑向和軸向負荷,從而保證了泵的運行平穩,振動小、噪音低。
3、管道離心泵軸封采用機械密封或機械密封組合,采用進口鈦合金密封環、中型耐高溫機械密封和采用硬質合金材料,耐磨密封,能有效地延長機械密封的使用壽命。
4、ISG立式離心泵安裝檢修方便,無需拆動管路系統,只要卸下泵聯體座螺母即可抽出全部轉子部件。
5、管道離心泵可根據使用要求即流量和揚程的需要采用泵的串、并聯運用方式。
6、離心泵可根據管路布置的要求采用泵的豎式和橫式安裝。
ISG管道離心泵主要用途
1、ISG型立式管道離心泵,供輸送清水及物理化學性質類似于清水的其他液體之用,適用于工業和城市給排水、高層建筑增壓送水、園林噴灌、消防增壓、遠距離輸送、暖通制冷循環、浴室等冷暖水循環增壓及設備配套,使用溫度T<80℃。
2、IRG型立式熱水管道離心泵廣泛適用于:能源、冶金、化工、紡織、造紙、以及賓館飯店等鍋爐高溫熱水增壓循環輸送及城市采暖系統循環用泵,IRG型使用溫度T<120℃。
3、IHG型立式化工離心泵,供輸送不含固體顆粒,具有腐蝕性,粘度類似于水的液體,適用于石油、化工、冶金、電力、造紙、食品制藥和合成纖維等部門,使用溫度為-20℃
~ 120℃。
4、YG型立式管道離心油泵,供輸送汽油、煤油、柴油等石油產品,被輸送介質溫度為-20℃ ~ +
120℃。
注:管道離心泵吸入壓力≤1.0MPa,或泵系統工作壓力≤1.6MPa,即吸入口壓力+泵揚程≤1.6MPa、泵靜壓試驗壓力為≤2.5MPa,訂貨時請注明系統工作壓力。泵系統工作壓力大于1.6MPa時應在訂貨時另行提出,以便在制造時泵的過流部分和聯接部分采用鑄鋼材料。環境溫度<40℃,相對濕度<95。
ISG管道離心泵型號意義:

ISG立式離心泵結構簡圖

ISG立式離心泵連接方式示意圖
管道離心泵硬性聯接

管道離心泵柔性聯接

ISG管道離心泵安裝說明
1、管道離心泵安裝前應檢查機組緊固件有無松動現象,泵體流道有無異物堵塞,以免水泵運行時損壞葉輪和泵體。
2、ISG離心泵安裝時管道重量不應加在水泵上,以免使泵變形。
3、管道離心泵安裝時必須擰緊地腳螺栓,以免起動時振動對泵性能的影響。
4、為了管道離心泵維修方便和使用安全,在泵的進出口管路上各安裝一只調節閥及在泵出口附近安裝一只壓力表,以保證在額定揚程和流量范圍內運行,確保泵正常運行,增長水泵的使用壽命。
5、管道離心泵安裝后撥動泵軸,葉輪應無磨擦聲或卡死現象,否則應將泵拆開檢查原因。
6、ISG離心泵分硬性聯接安裝和柔懷聯接安裝兩種(見聯接方式)。
ISG立式離心泵性能譜圖


以上性能曲線是以清水為測試介質,如輸送介質發生變化,根據黏度、比重等參數微調。
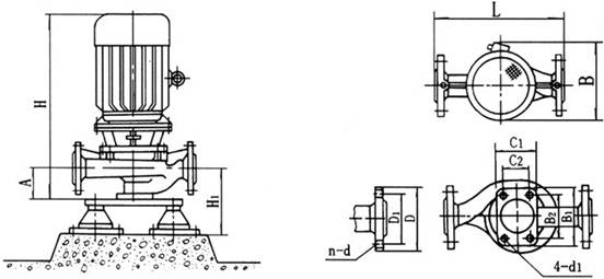
ISG立式離心泵安裝尺寸圖

管道離心泵故障形成與排除方法
